51品茶茶馆儿论坛,一品楼ypllt,快活林凤楼品茶论坛,一品qm论坛

欢迎访问柜猫轻奢定制官网
logo

品牌资讯

空间灵动 自由随心——柜猫家居现代简约案例赏析
发布时间:2020-11-29 16:26:27 文章作者:柜猫家居
导读:以简洁、明快的设计方式进行呈现,最终为现代家庭打造轻松自然的家居环境

   现代简约家居风格,强调空间感与实用性,并以简洁、明快的设计方式进行呈现,最终为现代家庭打造轻松自然的家居环境。
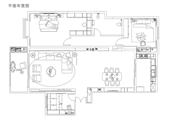
Type 户型图

柜猫家居新品

户型:3室2厅1厨1卫
面积:128平方

风格:现代简约


入户
柜猫家居玄关
  充分利用柜体功能性,减少狭小区域带来的空间压迫感。
客餐厅
柜猫家居餐厅柜猫家居新品柜猫家居新品柜猫家居新品
  打破空间隔断,让客餐厅融为一体,生活本应如此自由舒适。
主卧
柜猫家居新品柜猫家居新品
  主卧在设计上追求营造空间的层次感,改造后的衣帽间让收纳空间扩大的同时提高整体家居调性。
次卧
柜猫家居新品柜猫家居新品
  次卧注重空间的动静分区,辅以明朗的暖色,让休息环境更温馨。
书房
柜猫家居新品
  榻榻米+书房的设计让功能性更加灵动,闲暇时光、读书品茗,畅享人生。
厨房
柜猫家居新品
  厨房侧重实用性,联排柜体设计增扩储物功能,环形布局简洁明了,释放活动空间。
阳台
柜猫家居新品
  忘却生活的沉闷,尽享窗外美丽的风景,将设计的美运用到家的每一处。

Color scheme 配色
柜猫家居新品
  柜猫家居专注于从各个设计层面来提高家居产品的艺术性与实用性,同时将公司对美好生活的向往传递给每一位消费者。
热门动态 HOT
合肥柜猫网络科技有限公司 版权所有COPYRIGHT 皖ICP备18009601号-1
×
QQ咨询 在线咨询 售后服务

或者留下您的电话

与我交谈

<

主站蜘蛛池模板: 栾川县| 延吉市| 印江| 广宁县| 于都县| 绿春县| 赞皇县| 万宁市| 江门市| 巨鹿县| 安义县| 开鲁县| 疏附县| 营山县| 凤山市| 开原市| 辽源市| 河南省| 新化县| 台北市| 荣成市| 昔阳县| 敖汉旗| 卢龙县| 基隆市| 涟水县| 安平县| 资兴市| 涡阳县| 博乐市| 榆中县| 大丰市| 三亚市| 隆子县| 靖边县| 合山市| 汉源县| 都兰县| 怀远县| 开远市| 崇礼县|