品牌资讯

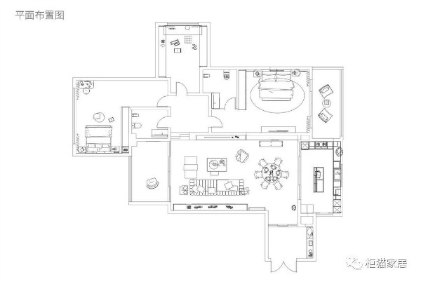
入户柜设计充分利用空间,功能区划分更加细致入微。
客餐厅一体化,极简干练,凸显整体层次感。
休憩区追求空间的释放,规避因布局拥挤带来的压抑感。

Kitchen厨房
开放式厨房打破局限感,让下厨成为一种乐事。

Color scheme 配色
▼

柜猫家居擅于在生活中寻找设计灵感,贴近生活,让设计不拘泥于形式,为更多家庭带来更好的产品和更舒适的家居体验感。
与我交谈
<